Guide Price £325,000

Calculate your mortgage repayments

4 bedroom Property for sale

Thame Road, Great Milton

  • Property
  • 4 bed
  • 3 bath
  • 1 reception
  • 2,659 sq.ft

Key Features

  • Rare opportunity to build your own home
  • Self-build plot of 0.15 acres
  • Permission for a contemporary 4 bedroom detached house
  • Outline planning permission granted – Ref: P25/S1522/O (SODC)
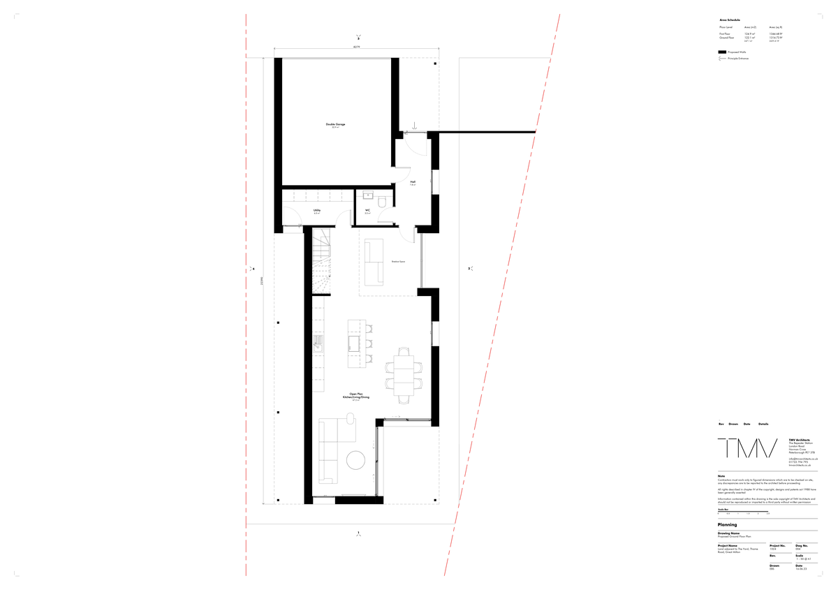
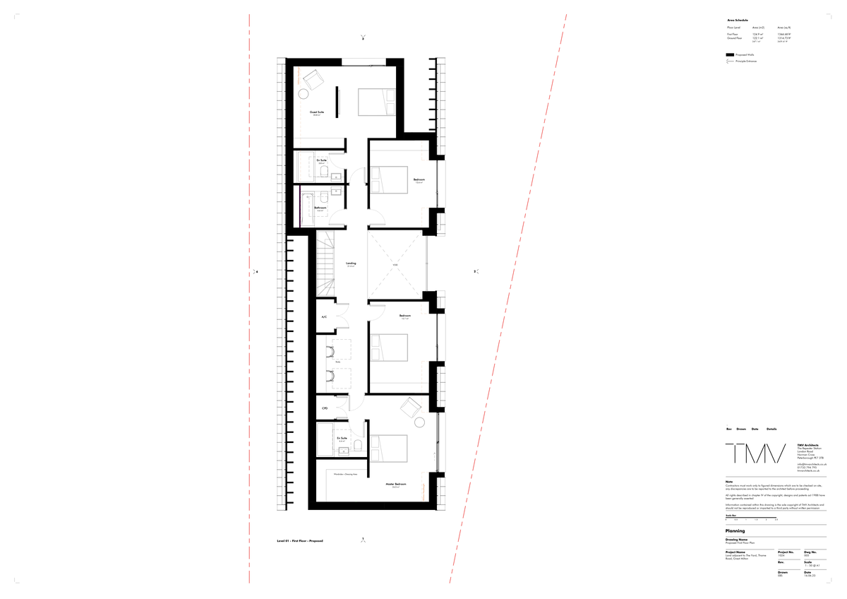
  • Proposed house including double garage: 247 m² / 2,659 sq ft
  • Set within an established and peaceful residential setting
  • Highly sought-after south Oxfordshire village
  • Within walking distance of village school and pub
  • Excellent local access to Oxford and to London via the M40

Description

LAND ADJACENT TO THE OLD STABLE YARD A rare opportunity to purchase a self-build plot with outline planning permission (Ref: P25/S1522/O, SODC) for a striking contemporary four bedroom/ detached home of 247 m² (2,659 sq ft), including a double garage.

The proposed design offers generous open plan living space, with the potential to create a bespoke family home. The plot also benefits from driveway parking and field views.

This is an exceptional chance to build a home tailored to your needs in one of Oxfordshire's most sought-after villages. Set within a peaceful and established residential location, the plot is within walking distance of the village school and pub.

For further planning details, please visit the SODC planning portal using reference: P25/S1522/O.


GREAT MILTON Situated in the attractive and highly regarded village of Great Milton c. 8 miles south east of Oxford and c. 7 miles west of Thame. Great Milton itself is right at the top of many buyers' wish lists. With its own pub and highly regarded local primary school, the village is both rural and full of life.

Incredibly well connected, Great Milton has its own bus service into Oxford, is just five minutes from junction 7 on the M40 and trains from nearby Haddenham and Thame will take you into London in just over half an hour. There is also a first-class range of independent and preparatory schools in the area.


Location


Floorplan

Floorplan Floorplan Floorplan

EPC


*This mortgage calculator is provided for general information purposes only. It's intended to provide you with an estimate of your potential mortgage payments and does not constitute an offer of finance or advice. The calculations are based on the information you provide and do not take into account your individual needs and circumstances.

The calculator does not include all the costs you will need to pay when taking out a mortgage. Your actual mortgage payments may be higher or lower than the estimates provided by this calculator. The interest rates used in the calculations are subject to change and may not reflect the actual rates available in the market.

Please note that the calculator does not consider changes in interest rates over time, early repayment charges, or any other fees and charges that may apply to your mortgage. You should always seek professional advice before making any financial decisions.

Remember, your home may be repossessed if you do not keep up repayments on your mortgage.

Calculate Your Stamp Duty
£
Results
Stamp Duty To Pay:
Effective Rate:
Tax Band % Taxable Sum Tax

£ 0
£ 0

Your estimated gross rental yield would be:

0.00%
Share this property